Lonsdale Estate Agents - Property Details

Skip To Content

Ballantyne Road, Thackley, BD10 2 Bedroom Semi-detached Dormer House For Sale

Offers in region of £215,000.00 No chain

  • 2 Bedrooms
  • 1 Bathroom
  • 1 Virtual Tours
  • 1 Floor Plans
Mortgage Calculator
£
£
%
Monthly repayments £0
Total cost of mortgage £0
LTV 85%

Council Tax Band : C
Estate Fee : Not Set
Building Insurance : Not Set

Quick Facts
Parking
  • Garage
  • Driveway
Heating
  • Double Glazing
  • Gas Central
Outside Space
  • Back Garden
  • Front Garden
Entrance Floor
  • Ground Floor
Accessibility
  • Level access
Condition
  • Some Work Needed
Property Features
  • 2/3 bedrooom dormer semi-detached
  • Spacious lounge
  • Downstairs bathroom
  • Dining room can be used as a downstairs bedroom
  • Upstairs are 2 double bedrooms
  • Gch with a digital worcester bosch condensing boiler
  • Front garden and side drive for 3 cars
  • Detached rear garage
  • Private enclosed sw facing rear garden
  • Needs total refurbishment throughout internally
  • Would make an ideal young family home
  • Much sought after part of thackley
  • No chain sale
Property Description

IN A MUCH SOUGHT AFTER LOCATION IS TO BE FOUND THIS ROBINSON BUILT DORMER SEMI-DETACHED * OFFERS 2 RECEPTION ROOMS OR THE DINING ROOM COULD BE USED AS A DOWNSTAIRS BEDROOM * FITTED KITCHEN * DOWNSTAIRS BATHROOM * USEFUL STORAGE CUPBOARDS * LANDING AREA WITH STORAGE * 2 DOUBLE BEDROOMS * GCH WITH A WORCESTER BOSCH CONDENSING BOILER * UPVC DG WINDOWS * FRONT GARDEN WITH A LONG DRIVEWAY TO THE DETACHED GARAGE * REAR SW FACING PRIVATE ENCLOSED GARDEN * OFFERED FOR SALE WITH NO UPWARD CHAIN * THIS IS AN IDEAL YOUNG FAMILY HOME * GREAT POTENTIAL TO PUT YOUR OWN STYLE INTO THIS PROPERTY * IT IS LIKELY THE PROPERTY WILL NEED A FULL RE-WIRE * POSSIBLY REPLASTERING IN SOME ROOMS *  NEW KITCHEN AND BATHROOM * TOTAL REFURBISHMENT PROJECT INTERNALLY * VIEWING ESSENTIAL *  

Situated in a highly desirable part of Thackley, this spacious semi-detached dormer home on Ballantyne Road presents a fantastic opportunity for buyers seeking a property they can truly make their own. Offered for sale with no onward chain and priced at offers in excess of £215,000, this two-bedroom home offers versatility, space, and a generous plot, making it an ideal choice for young families, downsizers or anyone looking to personalise a home to their own taste.

Set over two floors, the property opens into a generous ground floor layout comprising a light-filled lounge with ample space to relax and unwind. The separate dining room offers the flexibility to be used as a third bedroom should a downstairs sleeping option be required. The kitchen is fitted but dated, the bathroom is conveniently located on the ground floor, and while the home is in need of total refurbishment internally  throughout, it offers excellent potential to enhance and add value.
Upstairs, the layout continues with two well-proportioned double bedrooms, each offering plenty of storage options and natural light. The property benefits from gas central heating via a modern, digital Worcester Bosch condensing boiler, ensuring efficient performance and comfort all year round.
Externally, the home boasts a delightful and private south-west facing rear garden, perfect for outdoor entertaining or relaxing in the sun. There is also a detached garage to the rear and a side driveway providing off-street parking for several cars. The front garden adds further kerb appeal and completes the outside space.
This property enjoys a prime location within Thackley, a well-established and much sought-after residential area. Local amenities are conveniently close by, with supermarkets such as Morrisons and Sainsbury’s within a 5-10 minute drive. Families will appreciate the proximity to good local primary and secondary schools, including Thackley Primary School and Immanuel College. For leisure and recreation the nearby canal paths offer brilliant options for walking and cycling.
Excellent transport links further enhance the appeal of this home. Apperley Bridge train station is just over a mile away, providing quick rail access to Leeds, Bradford and beyond. There are also frequent local bus services and easy connections to major commuter roads. For those requiring air travel, Leeds Bradford Airport is conveniently situated approximately 15 minutes away by car.

With so much to offer in a thriving and well-connected location, this dormer semi-detached home represents an exciting opportunity to purchase in a particularly appealing part of Thackley. Viewing is highly recommended to appreciate the space, scope and potential available.

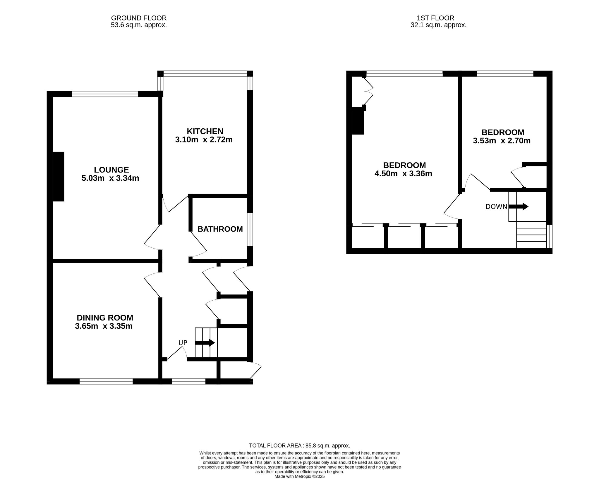
Entrance: Side door into a vestibule, internal door leads into the inner hallway, radiator, under stairs cupboard, along with an additional storage cupboard, stairs.

Lounge: 5.03m x 3.34m (16'5 x 10'9). Upvc dg window to front, radiator, coving, stone fireplace with a marble hearth and gas fire (not tested).

Dining Room: 3.65m x 3.35m (11'9 x 10'10). Upvc dg window to rear, radiator under.

Kitchen: 3.10m x 2.72m (10'1 x 8'9). Range of fitted wall & base units, work tops with tiling, front Upvc dg bay window, stainless steel sink, plumbed for a slimline dishwasher and auto-washer, piped for a gas cooker with an extractor over, space for a tall boy fridge freezer, space for a breakfast table and chairs, radiator.

Bathroom: 1.96m x 1.65m (6'4 x 5'4). Three piece suite, tiling, shower screen with a Mira Excel shower unit over the bath, side frosted Upvc dg window, radiator.

Landing & Stairs: Side Upvc dg window, return staircase, under drawing storage.

Bedroom 1: 4.50m x 3.36m (14'7 x 11'0). Full wall length sliding fitted wardrobes, Upvc dg dormer window to front, radiator under.

Bedroom 2: 3.53m x 2.70m (11'5 x 8'8). Upvc dg window to front, radiator, built in units, loft access, cupboard houses the Worcester Bosch Digital condensing boiler.

Externally: Front lawned garden with established borders, flagged and gravel driveway for several cars, side water tap and access door for garden equipment. Detached garage with a replacement door and power. Rear flagged patio, lawned garden with mature plantation, private and enclosed.  

While we endeavour to make our sales particulars fair, accurate and reliable, they are only a general guide to the property and, accordingly, if there is any point which is of particular importance to you, please contact the office and we will be pleased to check the position for you, especially if you are contemplating travelling some distance to view the property.
3. The measurements indicated are supplied for guidance only and as such must be considered incorrect.
4. Services: Please note we have not tested the services or any of the equipment or appliances in this property, accordingly we strongly advise prospective buyers to commission their own survey or service reports before finalising their offer to purchase.
5. THESE PARTICULARS ARE ISSUED IN GOOD FAITH BUT DO NOT CONSTITUTE REPRESENTATIONS OF FACT OR FORM PART OF ANY OFFER OR CONTRACT. THE MATTERS REFERRED TO IN THESE PARTICULARS SHOULD BE INDEPENDENTLY VERIFIED BY PROSPECTIVE BUYERS OR TENANTS. NEITHER MARTIN LONSDALE ESTATES LIMITED NOR ANY OF ITS EMPLOYEES OR AGENTS HAS ANY AUTHORITY TO MAKE OR GIVE ANY REPRESENTATION OR WARRANTY WHATEVER IN RELATION TO THIS PROPERTY. 
AML Please note if you proceed with an offer on this property we are obliged to undertake mandatory Anti Money Laundering checks on behalf of HMRC. All estate agents have to do this by law and we outsource this process to our compliance partners Credas who charge a fee for this service. 


       

            


Contact the agent

Property Reference: 0015445

Property Data powered by StandOut Property Manager

Fee Information

The advertised rental figure does not include fees.

I just wanted to drop you a note to thank you for your help and support during the sale of our house. It has been highly appreciated and we couldn't have done this and get here (finally!) without your help. Although stressful, you have made this whole process easier for us. Can't thank you enough honestly. Thank you again James & Laura M. 21st June 2021.
“We cannot speak highly enough of Martin Lonsdale... his service has been brilliant throughout our house sale! Martin has gone above and beyond for us. Nothing is ever too much trouble for him, he always responds quickly to communication. He has been the one person we could rely on to do a good job in the whole buying and selling process! We are so glad we chose a local estate agent to sell our house over an internet one, it’s been invaluable to have that personal service and local market knowledge!” 18th May 2021. Jonny & Georgie
To Julie and Martin, Thank you for all your help and support for the last 7 years. End of an era, helping me rent out my house and finally a sale (very quickly). Love from Shelley S.
Property: Derby Road, BD3 - All round first class service, overall experience excellent. Would you recommend our auction service to others? Definately. Well done and keep up the good work. Mrs A Metcalfe
Dear All, Thank you for handling of our house sale, it was nice not to have to worry about anything as you did everything for us. Best wishes Carolyn and Steve Pratt
Martin, Thank you for all your help in purchasing Coppice View, we love it. Nicky & Darren. 2020
To Martin, Oriel and staff. Thank you for being so patient with our sale at Brackendale. Love Karen and Mark J******.
Hi Martin Sorry for the delay in replying to Jason’s email but we have had broadband problems in our new house. Firstly I would like to say a massive thank you to you all ......no one could have gone the extra mile trying to secure a sale for Cyprus Avenue more than you guys. Martin your company is quite unique in the respect that every single one of you actually care about what you do and after thirty years in the industry that is very refreshing. As you are aware the property is now rented, however I would still consider selling it for the right price in a couple of years maybe. I realised I was just giving it away and I don’t want to do that so when the markets right then hopefully that will be a possibility and obviously I would like you to market it and sell it. Excellent service wish you had a branch in Sheffield! Very kind regards Sharren
Dear Martin, Just to say thank you to you and your colleagues for handling the sale of mum's house, much appreciated. Keep safe, kind regards, Tim W.
To Everyone at Martin Lonsdales, Thank you for all your help with the sale of * Three Nooked Mews, Kind regards Pam R.
view all testimonials >
National Health Discounts

You appear to have Javascript disabled. Some of this site’s features require Javascript to function.