Lonsdale Estate Agents - Property Details

Skip To Content

Leeds Road, Thackley, BD10 3 Bedroom Barn Conversion House For Sale

£395,000.00

  • 3 Bedrooms
  • 2 Bathrooms
  • 1 Virtual Tours
  • 1 Floor Plans
Mortgage Calculator
£
£
%
Monthly repayments £0
Total cost of mortgage £0
LTV 85%

Council Tax Band : E
Estate Fee : Not Set
Building Insurance : Not Set

Quick Facts
Additional Features
  • Dishwasher
Parking
  • Driveway
Heating
  • Double Glazing
  • Gas Central
Outside Space
  • Enclosed Garden
  • Front Garden
Entrance Floor
  • Ground Floor
Accessibility
  • Level access
Condition
  • Good
Property Features
  • Rare to market barn conversion
  • Not listed
  • 3 bedrooms and 2 bathroom facilities
  • Large lounge area with solid oak wood floor and a norman archway feature window
  • Kitchen diner with some integrated items and a range cooker
  • Externally parking for 2 cars
  • Large side and front gardens
  • Superbly placed for all the village amenities and good schools
  • Commuting for leeds with 2 railway stations close by
  • If you are looking for a spacious property with lots of character this is the one
  • Situated on a small private complex
  • Viewing essential
Property Description

RARE TO MARKET BARN CONVERSION SITUATED IN THIS SMALL PRIVATE COMPLEX * NOT LISTED * 3 BEDROOMS AND 2 BATHROOM FACILITIES * SPACIOUS LOUNGE WITH A SOLID OAK WOOD FLOOR AND A FEATURE NORMAN WINDOW * MODERN KITCHEN DINER WITH INTEGRATED ITEMS * DOWNSTAIRS DOUBLE BEDROOM AND EN-SUITE BATHROOM * UPSTAIRS * 2 BEDROOMS * FAMILY BATHROOM * UPVC DG WINDOWS AND A COMPOSITE ENTRANCE DOOR * ALARMED * BEAMS * PARKING FOR 2 CARS * LARGE FRONT & SIDE GARDENS * WELL PLACED FOR COMMUTING WITH 2 RAILWAY STATIONS CLOSE BY * ALL THE VILLAGE SCHOOLS ARE WITHIN WALKING DISTANCE * THACKLEY IS A VIBRANT VILLAGE WITH SHOPS, MICRO-BARS, PUBS, RESTAURANT,  CAFES/DELI * LOCAL CRICKET AND FOOTBALL TEAMS * CLOSE TO THE LEEDS BOUNDARY * THIS PROPERTY REPRESENTS VALUE FOR MONEY AND WOULD BE AN IDEAL FAMILY HOME * VIEWING ESSENTIAL *

We are delighted to present to the market, a rare gem nested in the idyllic village of Thackley close to the Leeds boundary. This stunning Barn Conversion is offered for sale at the very competitive asking price of £395,000 and boasts a plethora of charming features and generous amenities. Please, kindly note, this property is refreshingly not listed, thus facilitating a seamless buying process.

Upon entry into this captivating home, you will be greeted by a hallway, generous lounge area that resonates with elegance and grace. The lounge flaunts a character-defining Norman archway feature window and a robust solid oak wooden floor. The hardwood floor seamlessly complements the overall rustic charm and cosiness of this spectacular home.
Progressing further into the main living hub, we encounter a sizeable open-plan kitchen diner that exudes an air of modern fittings perfectly juxtaposed with traditional charm. Equipped with a selection of integrated appliances and a top-of-the-range cooker, this kitchen provides an enjoyable and efficient cooking experience.
There is a double bedroom downstairs, and a en-suite modern bathroom suite in white. Taking a tour upstairs, you'll find two bedrooms, family spa bathroom suite, emitting an aura of homeliness and tranquillity. 
Externally, this rare-to-market property provides parking space for two cars, a major convenience in today's fast-paced world. In addition, the house boasts sizeable front and side gardens, providing plenty of space for relaxation and entertainment. 
Situated on a small private complex, this barn conversion is premierly located with easy access to all village amenities and quality schools. For those looking to commute to Leeds, the property is within proximity to two local railway stations, offering efficiency and convenience to all potential homeowners.
Overall, if you're searching for a spacious, charming and standout property, look no further. We highly recommend private viewings to truly appreciate the beauty of this unique property.

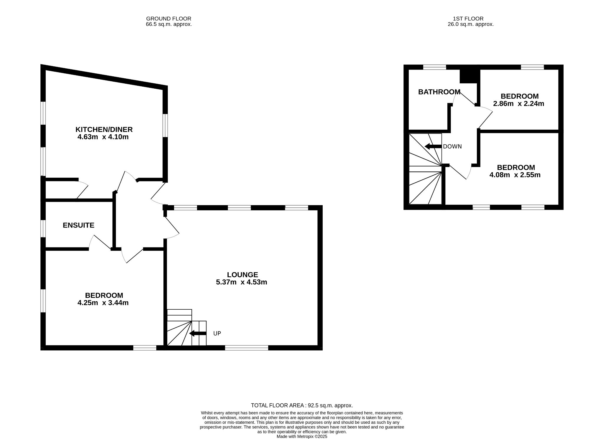
Entrance: Part glazed front composite door into the hallway, laminate flooring in grey plank effect, polished chrome radiator, access into the roof space which is part boarded. 

Kitchen Diner: Excellent range of wall & base units in a high gloss burgundy with complementary granite effect work tops and splash backs plus cream brick effect tiling above, led lighting to the unit plinths, integrated dishwasher, plumbed for an auto-washer, granite effect sink with an extendable tap, Upvc dg window to front, double extractor hood and light over a Range Master Toledo Oven with gas burners, oven and grill plus storage, space for a tall boy fridge freezer, space for a table and chairs, two Upvc dg window to rear, useful cupboard, grey plank effect laminate flooring, anthracite contemporary styled radiator.   

Bedroom 3: Upvc dg windows to front & side, two contemporary radiators, fitted wardrobes, beam feature, internal door leads onto the:-

En-Suite: P shaped three piece suite in white, shower screen, chrome thermostatically controlled shower unit with a rain head and hand attachment unit, frosted Upvc dg window, heated chrome towel rail, beam feature, porcelain tiled floor, part contrasting tiling to a wall.     

Lounge:  Feature Norman style archway window, solid oak wood floor, wired for a flat screen TV, two upright contemporary radiators, three Upvc dg windows, stairs to first landing.  

Landing Area: 

Bedroom 2: Upvc dg window to side, contemporary styled radiator in polished chrome. 

Bedroom 1: Two Upvc dg windows to side, anthracite styled contemporary radiator.        

Family Bathroom: Three piece spa style suite in white with an air bath, wc and contemporary styled wash basin, fully tiled, chrome radiator, frosted Upvc dg window, led lighting, touch screen vanity wall mirror, upright dressing mirror, tiled floor. 

Externally: Parking to the front for 2 cars, water tap, sensor security lighting, flagged pathway leads round to the first large grassed garden with a flagged patio, which in turn leads to the additional large front grassed garden with a farm house gate. Access to the property is from the main road up a private road into the small complex of cottage style properties.    

While we endeavour to make our sales particulars fair, accurate and reliable, they are only a general guide to the property and, accordingly, if there is any point which is of particular importance to you, please contact the office and we will be pleased to check the position for you, especially if you are contemplating travelling some distance to view the property.

3. The measurements indicated are supplied for guidance only and as such must be considered incorrect.

4. Services: Please note we have not tested the services or any of the equipment or appliances in this property, accordingly we strongly advise prospective buyers to commission their own survey or service reports before finalising their offer to purchase.

5. THESE PARTICULARS ARE ISSUED IN GOOD FAITH BUT DO NOT CONSTITUTE REPRESENTATIONS OF FACT OR FORM PART OF ANY OFFER OR CONTRACT. THE MATTERS REFERRED TO IN THESE PARTICULARS SHOULD BE INDEPENDENTLY VERIFIED BY PROSPECTIVE BUYERS OR TENANTS. NEITHER MARTIN LONSDALE ESTATES LIMITED NOR ANY OF ITS EMPLOYEES OR AGENTS HAS ANY AUTHORITY TO MAKE OR GIVE ANY REPRESENTATION OR WARRANTY WHATEVER IN RELATION TO THIS PROPERTY.  

Contact the agent

Property Reference: 0015389

Property Data powered by StandOut Property Manager

Fee Information

The advertised rental figure does not include fees.

“We cannot speak highly enough of Martin Lonsdale... his service has been brilliant throughout our house sale! Martin has gone above and beyond for us. Nothing is ever too much trouble for him, he always responds quickly to communication. He has been the one person we could rely on to do a good job in the whole buying and selling process! We are so glad we chose a local estate agent to sell our house over an internet one, it’s been invaluable to have that personal service and local market knowledge!” 18th May 2021. Jonny & Georgie
I just wanted to drop you a note to thank you for your help and support during the sale of our house. It has been highly appreciated and we couldn't have done this and get here (finally!) without your help. Although stressful, you have made this whole process easier for us. Can't thank you enough honestly. Thank you again James & Laura M. 21st June 2021.
To Martin, Julie & Lynne, Two down & one to go! Thank you for all your help in selling my houses! You've all been great & such a calming force, I can't tell you - it's been stressful! All the best Amanda x 20th December 2019
Hi Martin Sorry for the delay in replying to Jason’s email but we have had broadband problems in our new house. Firstly I would like to say a massive thank you to you all ......no one could have gone the extra mile trying to secure a sale for Cyprus Avenue more than you guys. Martin your company is quite unique in the respect that every single one of you actually care about what you do and after thirty years in the industry that is very refreshing. As you are aware the property is now rented, however I would still consider selling it for the right price in a couple of years maybe. I realised I was just giving it away and I don’t want to do that so when the markets right then hopefully that will be a possibility and obviously I would like you to market it and sell it. Excellent service wish you had a branch in Sheffield! Very kind regards Sharren
To Martin, Oriel and staff. Thank you for being so patient with our sale at Brackendale. Love Karen and Mark J******.
To all the team at Lonsdales, Thank you for all of your help and support throughout the sale of Farm Cottage. With love from Rebecca & Tom J.
Dear Martin & all the staff at Martin Lonsdale's. Thank you so much for the excellent service we have received in the sale of * Tunwell Lane. Many thanks Sally & Jill.
Dear Martin, Just to say thank you to you and your colleagues for handling the sale of mum's house, much appreciated. Keep safe, kind regards, Tim W.
To Martin Thank you for our new house. Josiah. Thank you for every thing love Eden.
My only regret is that we didn’t go with you from the outset. You stand head and shoulders above our previous agents. Thanks again, Sally
view all testimonials >
National Health Discounts

You appear to have Javascript disabled. Some of this site’s features require Javascript to function.